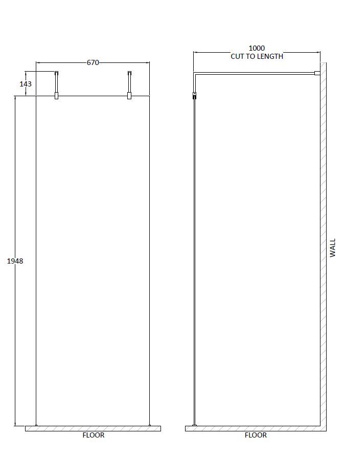
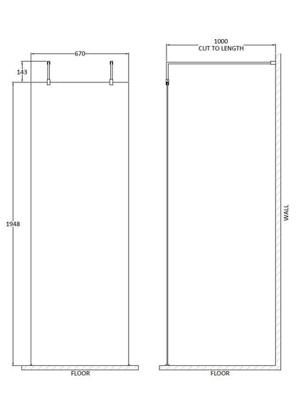
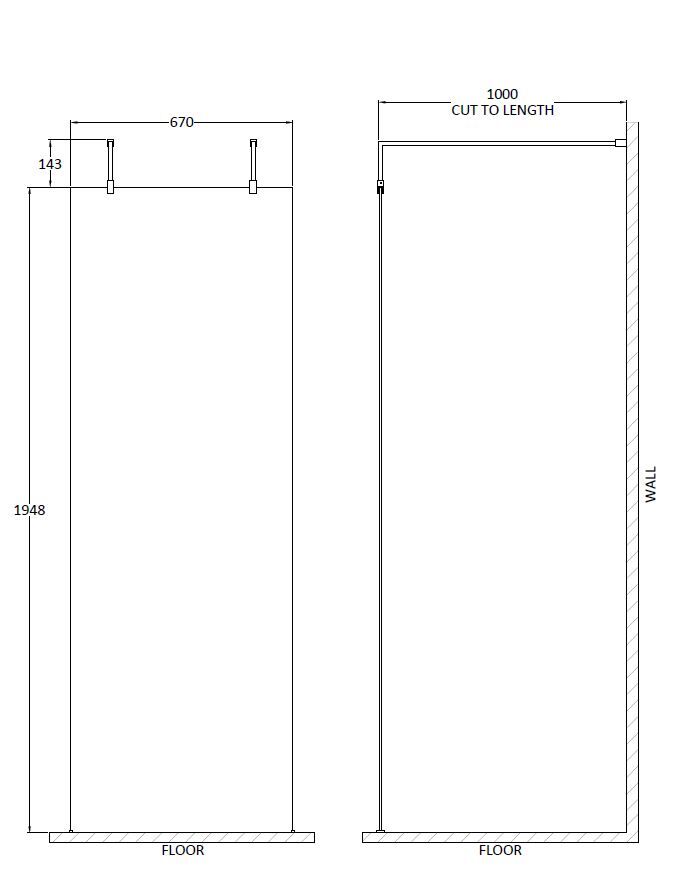
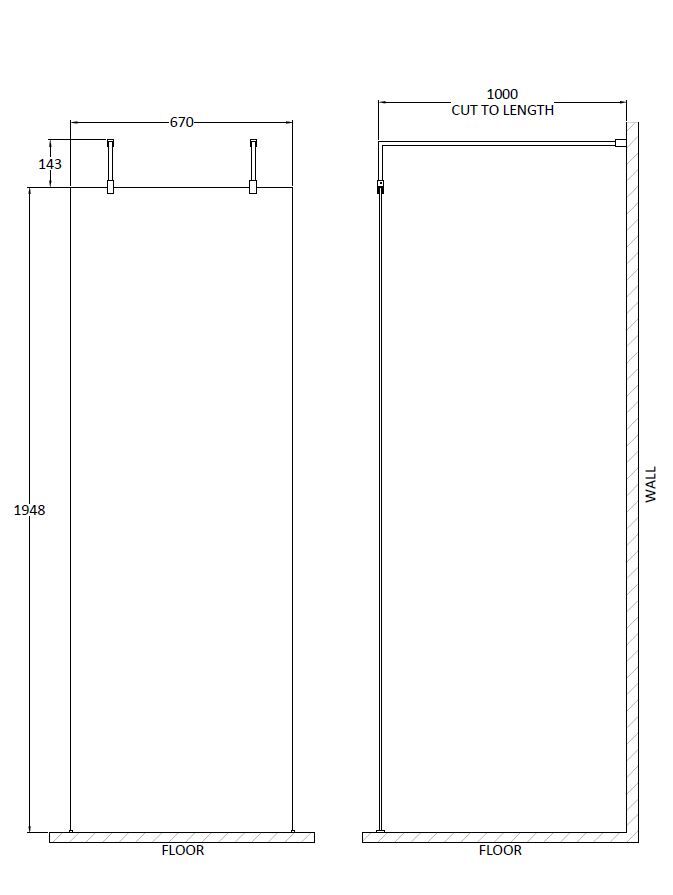
Hudson Reed 700mm Framed Matt Black Wetroom Screen With Arms And Feet
Hudson Reed 700mm Framed Matt Black Wetroom Screen With Arms And Feet
VAT included.
9+ available

Product Description
Hudson Reed 700mm Wetroom Screen with Arms and Feet - 8mm Glass - Matt Black