Hudson Reed 1200mm Framed Matt Black Wetroom Screen With Ceiling Posts
Hudson Reed 1200mm Framed Matt Black Wetroom Screen With Ceiling Posts
VAT included.
9+ available

Product Description
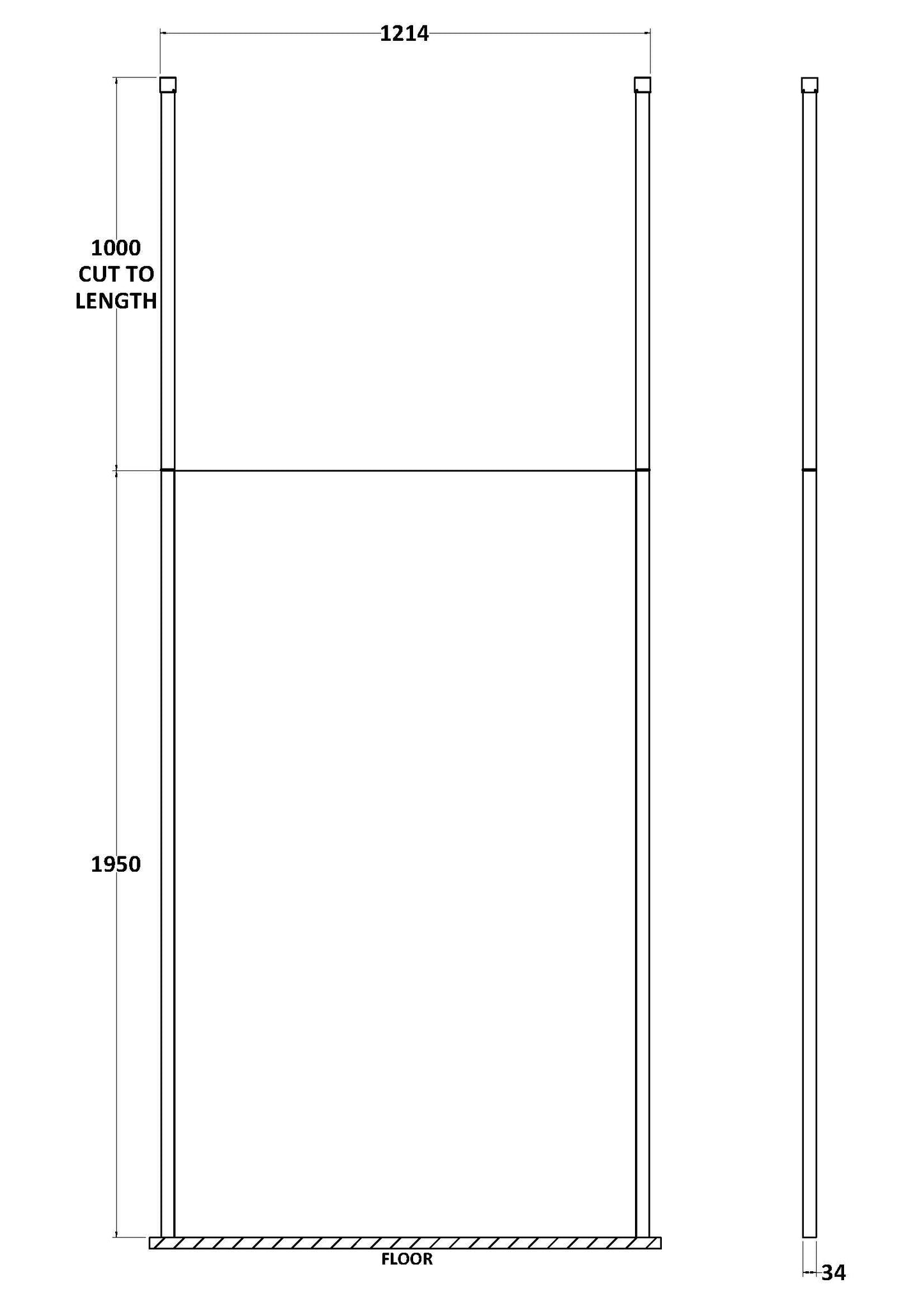
Hudson Reed 1200mm Wetroom Screen with Ceiling Posts - 8mm Glass - Matt Black